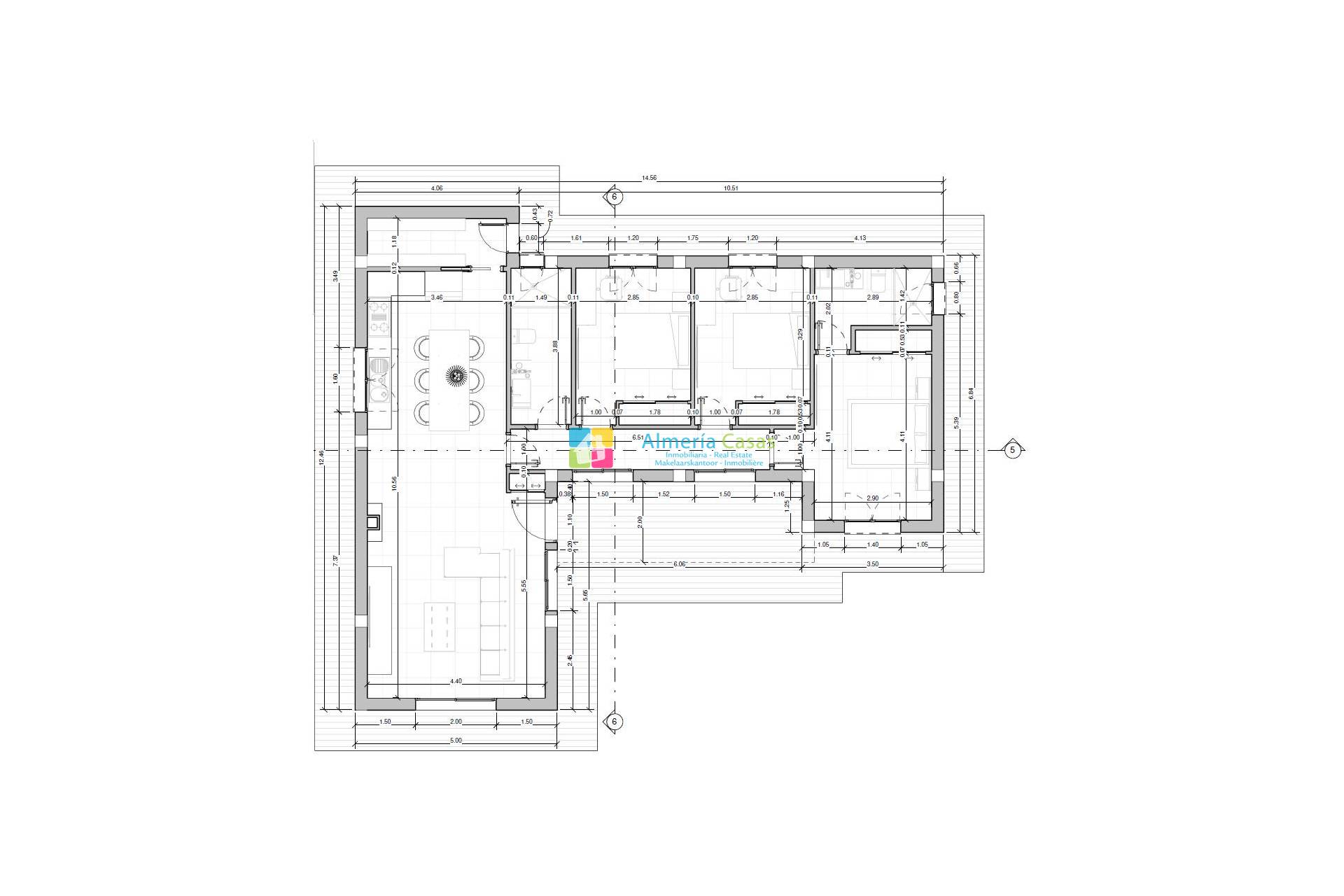
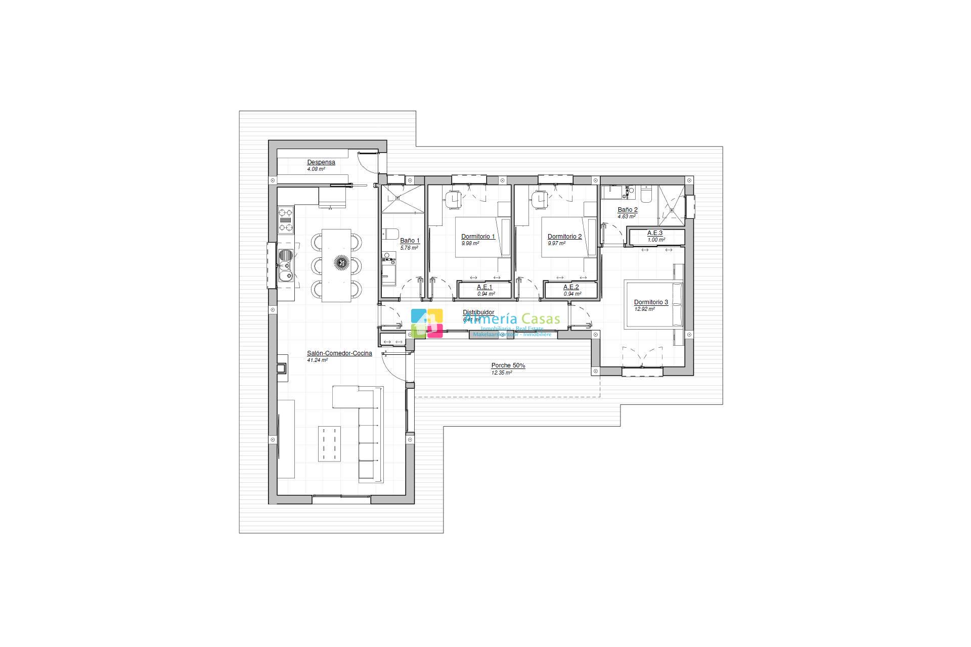
Moderne off-plan villa gelegen op een uitstekende locatie in Limaria, met een eigentijds ontwerp en comfortabel wonen in het hart van Almería. Deze prachtig ontworpen woning beschikt over drie ruime slaapkamers en twee moderne badkamers, allemaal zo ingedeeld dat ze optimaal profiteren van natuurlijk licht en een lichte, aangename sfeer creëren in de hele woning.
De woning draait om een open keuken en woonkamer, volledig uitgerust met apparatuur zoals een kookplaat, oven, afzuigkap, koelkast en magnetron. De koper heeft ook de mogelijkheid om te kiezen tussen een wasmachine of vaatwasser, wat zorgt voor een persoonlijke afwerking. Grote deuren geven direct toegang vanuit de woonkamer naar het terras, waardoor binnen- en buitenruimtes naadloos in elkaar overlopen.
Buiten beschikt de villa over een privézwembad van 7 x 3,5 meter, ideaal om te ontspannen of gasten te ontvangen, evenals een volledig omheind perceel dat volledige privacy garandeert. Een garage van 5 x 4 meter biedt veilige parkeergelegenheid en extra opslagruimte.
De woning is voorzien van een pre-installatie voor airconditioning en een zonneboiler voor warm water, wat zorgt voor een betere energie-efficiëntie. Ontworpen met comfort en gemak in gedachten, wordt de villa bij oplevering instapklaar opgeleverd.
Gelegen in een rustige en privéomgeving maar toch dicht bij lokale voorzieningen, is dit een uitstekende kans om een moderne woning te bezitten in een gewilde regio van Almería.
Deze informatie is hier onderhevig aan fouten en maakt geen deel uit van een contract. De aanbieding kan zonder kennisgeving worden gewijzigd of ingetrokken. Prijzen zijn exclusief aankoopkosten.